
We offer for rent a luxurious 4-room duplex apartment with an atrium in Ljubljana!
We present you with an exceptional opportunity to rent a yet unoccupied 4-room duplex apartment with an atrium. It is located in an excellent location near the Azur restaurant in Ljubljana; the surroundings are quiet and well maintained.
The apartment is situated in a newer multi-family building with an elevator, where several different apartments are available for rent (3-room and 4-room apartments). Large glass surfaces ensure that the apartment is bathed in sunlight all day, creating a pleasant atmosphere. At the same time, it is in close proximity to nature, allowing for relaxing walks and enjoyment of the peaceful environment. All necessary infrastructure is nearby, such as LPP bus stops (14 and 6), Vrhovci and Vič primary schools, Špar and Mercator stores, kindergarten, and close access to the Brdo and Dolgi most highway junctions. This part of Ljubljana is ideal for those who want to combine urban comfort with natural beauty.
The apartment is rented furnished; well-maintained tenants seeking a long-term rental are preferred. Small pets are allowed by prior arrangement!
Main features:
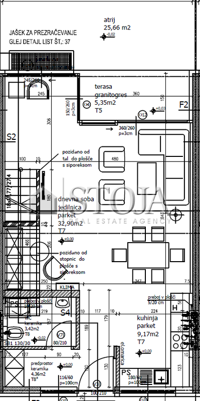
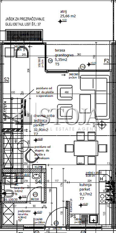
- Total area of the duplex apartment (4-room) is 154.3 m² (112.4 m² of living area; 30 m² atrium; 8.8 m² area of both balconies and 3 m² storage room);
- Quality materials and comfort for the owners: The building was constructed with quality materials, and the apartments are fully furnished with custom-made furniture;
- Heating is underfloor, all rooms are equipped with air conditioning, providing high comfort throughout the year.
- The apartment is southeast oriented, ensuring plenty of natural light and a pleasant living environment;
- The apartment includes a spacious atrium, allowing for enjoyable outdoor leisure time;
- Two parking spaces are available in the basement level, along with a storage room and a shared bicycle storage;
- The apartment offers a nice view and boasts a very sunny and quiet location near nature.
- All necessary infrastructure is nearby, including LPP bus stops, primary school, shops, pharmacy, bank, and close access to the Brdo and Dolgi most highway junctions.
- Possibility to rent as a legal entity, price €2,250 + VAT
Do not miss the opportunity to rent a modern apartment in a quiet and green environment. For more information or a viewing, please contact us.